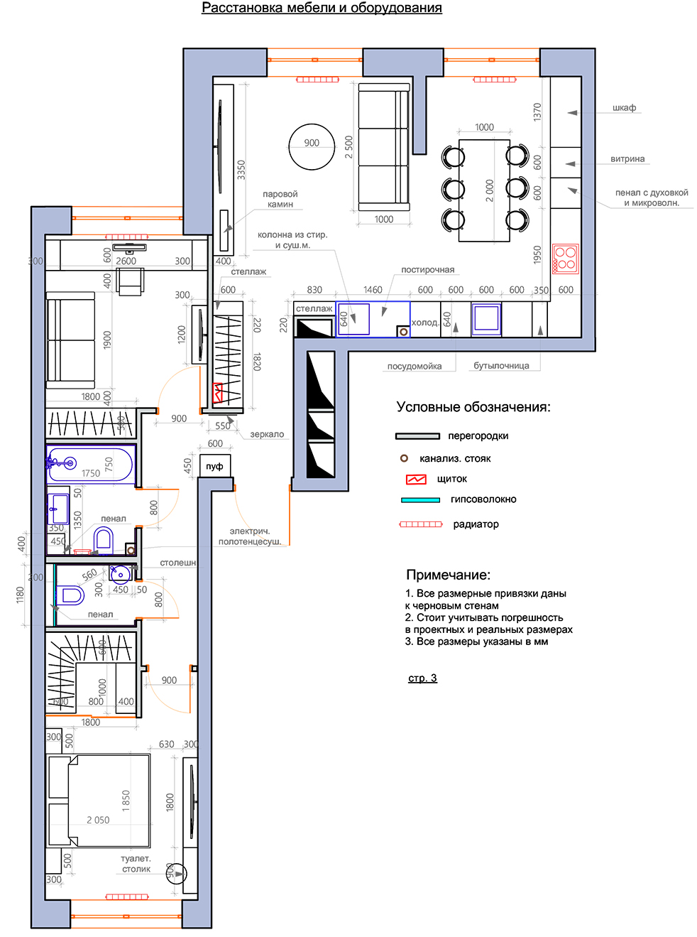
Квартира "Современная классика" с объединением лоджии, 77 кв., ЖК "Режиссёр"

Это трёхкомнатная светлая квартира для молодой семьи с 9-летним сыном. Зона кухни-столовой объединена с лоджией. Гостиная визуально отделена от кухни. Имеется два санузла, спальня с гардеробной и комната для сына, отражающая его спортивное увлечение.


P.S. Щёлкайте по картинкам для увеличения.

3D-визуализации

Все картинки
Все картинки
Все картинки
Все картинки
Все картинки
Все картинки
Все картинки
Все картинки
Все картинки
Все картинки
Все картинки
Все картинки
Хотите увидеть альбом полного-дизайн-проекта?
Оставьте свой контактный номер, и я вам перезвоню в течение 10 минут для уточнения деталей
Нажимая на кнопку, вы даете согласие на обработку персональных данных и соглашаетесь c политикой конфиденциальности
Made on
Tilda